Город МОСКОВСКИЙ
Найдено результатов: 99
Js Веб-Архитектор

Разворачиваем на сервере веб-приложение React js + Nest js

Запись вебинара «Astra Linux на защите ваших данных»

Как свой JavaScript подключить к проекту WYSIWYG WEB BUILDER

1-2 гр Веб-дизайнер Создание web-сайтов. Основы HTML -пр.- 15.07.2025 ТГУ

اسلوب التقديم والتأخير المحاضرة (١)

БРИКС: Россия и Китай | АрхитектурНО

Архитектурное следование в веб-приложениях: Основы и инструменты

#2 Курс JS для WEB: Браузерные события

トルキア

Проектируем табурет IKEA “FROSTA” в Pro100/ урок для начинающих

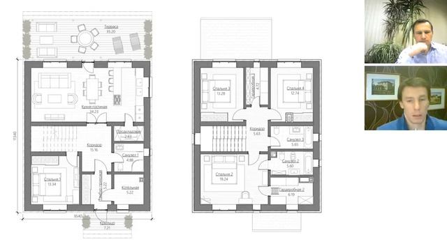
Вебинар. Проектирование дома с архитектором

Tableau Базовый №20. Вычисления. Итоги

Javascript Интерактивные веб-приложения Урок 8

Идея проекта

Web Architecure

Электрогитара 7 струн JET JS-407

찌찌 만질래?

【ゆっくり解説】カートゥーンマウスはカートゥーンキャットの悪夢を見るのか(トレバーヘンダーソン氏)

Мастер-класс по веб-дизайну в Linux (Open Source)

Ехал казак над рекою

Добавляем Webpack в готовый проект на чистом JS

Архитектура и смерть. Мемориальный фактор в сакральной архитектуре. Фестиваль «Архитектон»

Презентация модуля «IT Architect: система управления ИТ-архитектурой» для Business Studio

Храмовая архитектура в контексте современности. Фестиваль «Архитектон»