Найдено результатов: 100
Http Redeem Microsoft Com

Xiaomi Redmi A3. Сброс графического ключа или пароля. Hard reset.

(REQUESTED) Full Best Animation Logos in G-Major 14

How to import and redirect your email with Microsoft 365

Установка Microsoft SharePoint Server 2010

PROPERLY Share Your Screen in a Microsoft Teams Meeting (For BEST Experience!)

Menace - Новый X-COM

Microsoft Word для начинающих от А до Я. Базовый курс видеоуроков по программе Ворд

Redmi Watch 6 — бюджетные смарт-часы с AMOLED и HyperOS за $84! 🔥

SMG4 Movie: IT'S GOTTA BE PERFECT

hidden Microsoft Windows xp startup sound

How to Wrap Text in Microsoft Excel

Почти квадратные мониторы. Редкий вид из «красной книги».
![[Курс «Revit ОВ/ВК: быстрый старт»] Размещение плана этажа с экспликацией на лист](https://pic.rtbcdn.ru/video/2025-01-14/98/64/986459ba3a7db1571d803ee82b4fa95d.jpg?width=640)
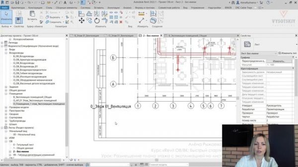
[Курс «Revit ОВ/ВК: быстрый старт»] Размещение плана этажа с экспликацией на лист

FRP! Redmi 4A - заблокирован, 2020, Google account, подтверждение аккаунта

How to Fix Microsoft Store Not Working - Reinstall Microsoft Store

Разблокировка, сброс #Mi #Account на #Xiaomi #редми #Redmi .Обход Забытого Ми Аккаунта в 2021 году

Fix Microsoft Store - Try that again something happened on our end waiting a bit might help

МОЯ УЧЁТНАЯ ЗАПИСЬ МАЙКРОСОФТ

Новый Интерфейс управления .Русская прошивка пульта

Смарт часы Redmi Watch 5 Lite - полный обзор со всеми тестам и сравнение с Redmi 5 Active и Redmi 4

Redmi 14C: Разблокировка XyperOS — Полный Гайд!

How to Install a SIM Card to Redmi Note 13

DataMobile: Урок №40. Настройка HTTP-сервиса для обмена данными.
![How To Redeem Microsoft Rewards Without Phone Number [EASY!]](https://pic.rtbcdn.ru/video/2024-10-26/e6/6c/e66c6aca50244b3ca468e972cd2a6ed4.jpg?width=640)
How To Redeem Microsoft Rewards Without Phone Number [EASY!]
Что ищут еще по теме: